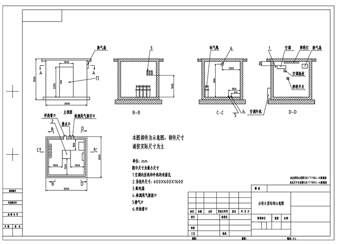
CEMS煙氣在線監測系統分析小屋,也可以稱為現場分析小屋。它是一種安裝分析儀的封閉型構筑物,分析儀的操作維護在小屋內進行。分析小屋集在線氣體分析儀表及樣品處理系統于一體,并配備有供配電、空調系統、照明及氣體分析儀表所需載氣、標準氣、儀表空氣等基本設備。
施工要求
CEMS煙氣在線監測系統分析小屋:位置選擇原則為“就近原則”,應盡量靠近采樣探頭位置,采樣探頭的加熱輸送管線應盡量短
墻:應采用合適的材料滿足有關的結構和安全要求;(磚砌墻體:墻體結構為實心磚砌,內外墻粉刷混凝土和白粉灰,小屋墻頂實行混凝土現場澆灌平頂,進行防漏和隔熱處理;
地面:室內地面標高應高于室外地面標高至少200mm;地面應能防滑、防滲,必要時采用耐酸、堿地面。地面基礎荷載強度2000kg/m2;
窗:宜采用密閉固定窗;
開孔:在監測房內放置機柜背面墻壁(必要時側墻也可以,依據現場走線方便),距離地面高度的2.5m處,為樣氣管路及電纜管路開孔,開孔尺寸為Φ90mm圓孔,開孔數量1個;在機柜背面墻壁接近地面底部上開孔,開孔尺寸為ф40mm,開孔數量1個,作為廢氣廢水排放口;站房內應安裝排氣扇,應預留安裝排氣扇孔位,具體開孔尺寸依據所購買排氣扇尺寸;安裝空調開孔尺寸為Φ90mm圓孔;
防雷:系統的儀表設備工作電源應有良好的接地措施,接地線纜應大于4mm2的獨芯護套電纜;平臺、監測站房、交流電源設備、機柜、儀表和設備外殼、管纜屏蔽層和套管的防雷接地,可利用廠內區域保護接地網,采取多點接地方式;電源線和信號線加防雷器。

尺寸
l分析小屋的使用面積不小于9平方米;
2室內凈高 2800mm~3000mm;
3放置體積為 800mm*700mm*2000mm的機柜。
室內環境
CEMS分析柜對環境溫度、濕度有一定要求,要求環境溫度在 20~35℃之間(典型溫度為25℃),相對濕度在80%以下,故CEMS煙氣在線監測系統分析小屋內需安裝通風設施和空調(1P)空調應具有來電自動復位功能,現場無強烈震動。
電源
220VAC、50Hz,10KW,接地可靠,一般接地電阻要求≤4歐姆。由用戶接到CEMS煙氣在線監測系統分析小屋的電源分線箱內,電源分線箱內配置3個空氣開關,規格分別為 60A,30A,30A各一個;還有一組220VAC的電源插座。電源線通過纜溝進入到儀器分析柜的下面,分析柜與墻壁之間的距離不小于500mm。
照明
考慮到 CEMS 分析柜安裝、維護等日常操作,需安裝照明,照明開關帶三線或二線插座。
氣液接入、排放
在指定位置預留樣氣入口、冷凝液排放口、尾氣排放口。
反吹氣源
排氣流量不低于 240L/min、壓縮空氣容量不低于50L、排氣壓力不低于0.8MPa的反吹氣源;并確保反吹氣源長期不間斷的提供,以保證設備的正常運行,氣源管末端應安裝 G1/2”內螺紋球閥或ф8mm管或快插接頭。
CEMS煙氣在線監測系統分析小屋尺寸圖


上海博測環境科技專注環境空氣質量監測和企業廢氣排放監測15年,是專業的環保達標監測解決方案提供商,有豐富的行業經驗和專業的技術團隊,為用戶量身定制監測方案,靈活優化站點和儀器,確保監測數據真實準確,滿足監測考核要求。博測環境提供一站式達標監測服務,讓用戶后顧無憂。更多監測方案和系統設備等相關詳情請咨詢138-1761-7784。
免責聲明:上述文章素材部分來源網絡,本文目的在于傳遞更多信息,并不代表本司贊同其觀點或和對其真實性負責,不承擔此類作品侵權行為的直接責任及連帶責任。如有涉及作品內容、版權等問題,請及時致電13817617784,我們將盡快做修改/刪除處理。